- 当前位置:
- 首页
- >
- 装修案例
- >
- 实景案例
- >
- 恒扬公园8号
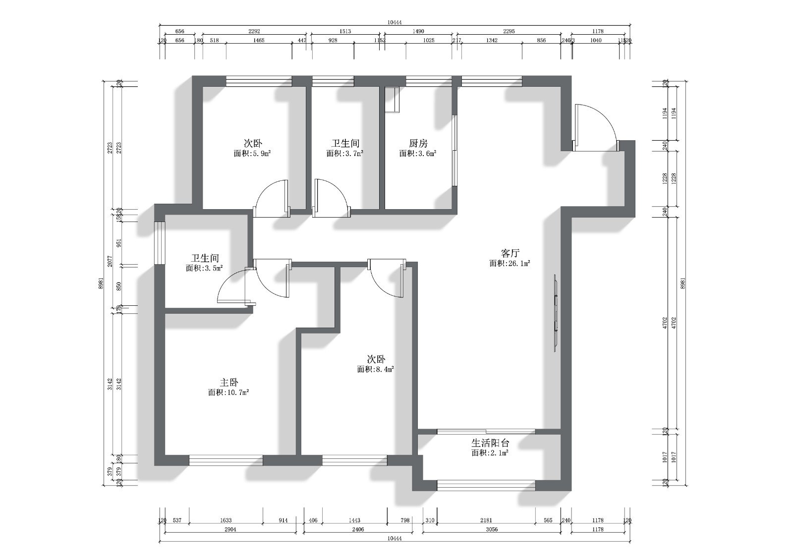
恒扬公园8号法式风格装修效果图
浏览次数:643次 更新时间:2026-02-03 11:53:23 - 案例风格
- 法式
- 案例户型
- 三居
- 案例面积
- 122.0平
预约本案例设计师
本案设计师简介

- 姓名:刁立蕊 部门:星图设计部 电话:400-678-8998
查看Ta的其他案例
相关推荐

- 户型:三居 面积:130.0m² 装修风格:法式

- 户型:二居 面积:88.0m² 装修风格:新中式

- 户型:四居 面积:180.0m² 装修风格:现代简约

- 户型:三居 面积:147.0m² 装修风格:现代简约

- 户型:三居 面积:150.0m² 装修风格:现代简约

- 户型:三居 面积:150.0m² 装修风格:现代简约