石家庄[切换]
今朝装饰是中国老房装修装修标准制定者
今朝装饰是中国老房装修装修标准制定者
今朝装饰是中国老房装修装修标准制定者

选择我的城市。

当前位置:
首页
>
装修案例
>
实景案例
>
华远昆仑赋

华远昆仑赋现代简约风格装修效果图

浏览次数:752次 更新时间:2026-02-07 15:47:19
设计理念:风格来了又走,但好的设计是一门语言不是一种风格。空间是情绪的容器,设计应唤醒感官体验,设计应回应场地,记忆与时间的重量,时光验证家的温度,设计美一个家。
客厅
客厅
客厅
客厅
客厅
客厅
客厅
客厅
客厅
客厅
客厅
客厅
客厅
华远昆仑赋现代简约风格客厅装修效果图 进门左侧是玄关柜,正对面墙上挂饰线条简洁,富有韵律。特色纹理花瓶插干花,增添雅致氛围,与整体空间的简约大气相呼应,尽显中古风的独特韵味。
华远昆仑赋现代简约风格客厅装修效果图
华远昆仑赋现代简约风格客厅装修效果图 复古吊灯造型别致,成为视觉焦点,散发怀旧韵味。深色边框装饰画有序排列,增添艺术氛围。木元素的运用,如木质地柜,带来自然温暖质感,尽显中古风独特风情。
华远昆仑赋现代简约风格客厅装修效果图 以温润木元素为主调,餐桌造型简约且带有别致镂空,搭配藤编座椅,复古又舒适。上方个性吊灯增添氛围感,旁边是兼具展示与收纳的木柜,洞洞板可挂置物品。整体与客厅相连,采光充足,营造出温馨又具韵味的用餐空间。
华远昆仑赋现代简约风格客厅装修效果图
华远昆仑赋现代简约风格客厅装修效果图 半开放式厨房用玻璃推拉门隔断,既防油烟又保证空间通透。窗边定制的柜体实用美观,整体营造出舒适且互动性强的餐厨区域。
华远昆仑赋现代简约风格客厅装修效果图 以暖色调为主,营造温馨氛围。米色墙面搭配浅木色地板,自然舒适。床头挂有两幅简约装饰画,增添艺术感。独特的灯笼造型吊灯,柔和照明。窗边设榻榻米,增加收纳与休闲功能。嵌入式衣柜满足衣物收纳整体实用又宜居。
华远昆仑赋现代简约风格客厅装修效果图
华远昆仑赋现代简约风格客厅装修效果图 黑色铁艺床简约又有个性,搭配花色床品和多彩抱枕,活泼温馨。墙上色彩鲜艳的卡通挂画,增添趣味氛围。窗边纱帘轻盈,光线柔和。一侧的木质衣柜满足收纳需求,整体营造出舒适且充满想象力的空间。
华远昆仑赋现代简约风格客厅装修效果图
华远昆仑赋现代简约风格客厅装修效果图 以米色、木色为主色调,营造温暖氛围。墙面挂简约装饰画,增添雅致感。床具软硬适中,搭配柔软床品,利于老人休息。窗边采光良好,嵌入式衣柜提供充足收纳空间,整体方便老人日常起居,舒适又温馨。
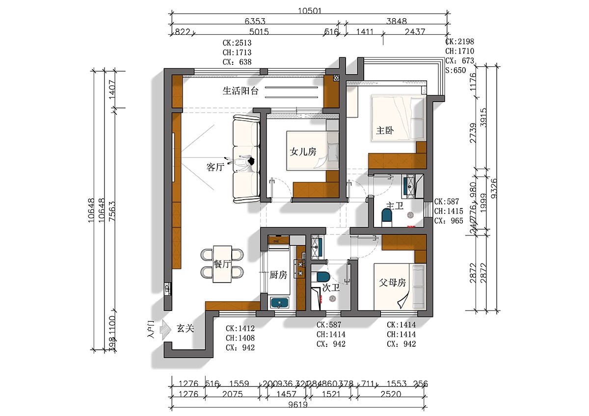
华远昆仑赋现代简约风格客厅装修效果图 户型本身方正通透,设计师未做修改在此基础上进行合理的布局利用定制柜体增加收纳
华远昆仑赋现代简约风格客厅装修效果图
预约本案例设计师

本案设计师简介

姓名:刁立蕊 部门:星图设计部 电话:400-678-8998

查看Ta的其他案例

相关推荐

安联生态城_装修设计效果图

安联生态城

户型:二居 面积:98.0m² 装修风格:法式
五合锦江府_装修设计效果图

五合锦江府

户型:三居 面积:150.0m² 装修风格:现代简约
白佛家园_装修设计效果图

白佛家园

户型:三居 面积:114.0m² 装修风格:新中式
保利城_装修设计效果图

保利城

户型:三居 面积:120.0m² 装修风格:简欧
玫瑰湾_装修设计效果图

玫瑰湾

户型:二居 面积:90.0m² 装修风格:现代简约
德贤华府_装修设计效果图

德贤华府

户型:三居 面积:147.0m² 装修风格:轻奢

装修计算器

我家装修预算为:

装修人工费15964
装修材料费25868
Copyright©1999-2023 石家庄今朝装饰设计有限公司版权所有 Jinzhao.ALL Rights Reserved

冀公网安备13010802001682号